房子这样装,“五一”宅家五天也有满满幸福感!
临近月末,大家期待已久的“五一”小长假即将来临,想要出去浪的心不断翻腾。但专家表示,目前全国疫情还无法实现清零目标,加之南方疫情或进入高发期,因此要想“五一”小长假实现自由跨省出行,或许很难。
其实,把房子装好了,家里也能秒变游乐场,为一家人留下美好亲子时光。通过这一案例便能很好体现:
户型 | 128㎡三室两厅两卫
风格 | 现代简约
颜色 | 深空灰、ML012
楼盘 | 重庆璟樾云山

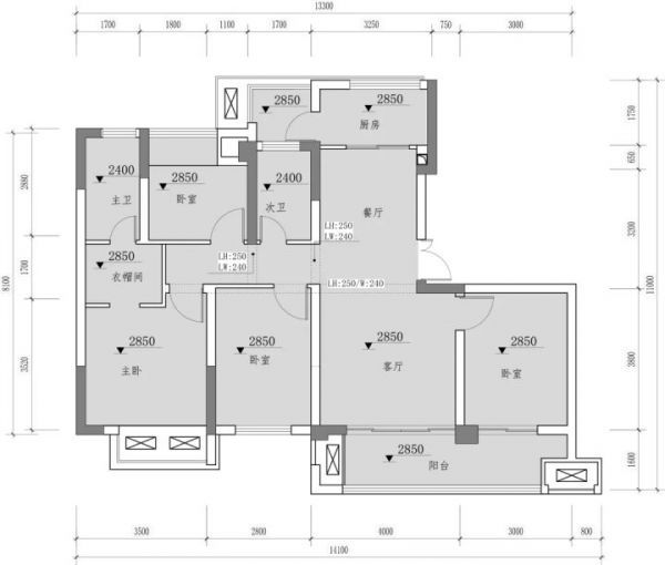
▲装修前平面布局图

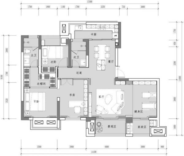
▲装修后平面布局图
案例的屋主是一对新婚夫妻,非常注重生活质量和质感。男主人酷爱健身,理想中的家是时尚新潮有格调的,而女主人钟意阅读,希望家里弥漫一片温馨浪漫烟火气。
【客厅】

图片由 佛山·罗浮宫国际家具博览中心 1FA91-92,1FA93/97 玛格全屋定制 提供
空间配色基调为浅木色,搭配温润高贵的大理石,加以深色线条点缀,营造出男主人想要的低调雅致的氛围;现代简约的布艺沙发与生机勃勃的绿植呼应,让客厅显得典雅别致又不失活泼清新,正满足女主人渴望的温馨烟火气。

图片由 佛山·罗浮宫国际家具博览中心 1FA91-92,1FA93/97 玛格全屋定制 提供
“五一”,在如此充满温情的环境下,不管是一起看电影、刷综艺还是煲连续剧,都能收获一个甜蜜的二人世界。
【健身房】

图片由 佛山·罗浮宫国际家具博览中心 1FA91-92,1FA93/97 玛格全屋定制 提供
客厅旁原本为卧室的房间被打通,布置上健身器材,形成与客厅相连、共享开阔的开放型健身房。靠墙的收纳柜,补充了客厅的收纳需求,中间巧设隐形把手,简洁又利落。

图片由 佛山·罗浮宫国际家具博览中心 1FA91-92,1FA93/97 玛格全屋定制 提供
拥有这样一个活力充沛的健身空间,便能在酣畅淋漓的运动中,度过一个简单、充实又美好的“五一”!
【餐厅】

图片由 佛山·罗浮宫国际家具博览中心 1FA91-92,1FA93/97 玛格全屋定制 提供
纹理自然的大理石柱与沉稳的深色原木桌面组合成岛台式餐桌,彰显屋主卓越的时尚品位和返璞归真的生活态度。石柱上自然生长的绿植与从天花板上垂下的灯具相呼应,使得整体空间充满现代的气息。“五一”在这样的环境用餐,比去高级餐厅吃一顿烛光晚餐,更浪漫!
【主卧】

图片由 佛山·罗浮宫国际家具博览中心 1FA91-92,1FA93/97 玛格全屋定制 提供
主卧主色调为充满高级感的暖浅灰色,饰以清雅的深蓝色块,打破空间的沉闷。木质地板、床头柜为卧室注入古朴自然的气息。宽大的玻璃飘窗为室内带来充盈的阳光。

图片由 佛山·罗浮宫国际家具博览中心 1FA91-92,1FA93/97 玛格全屋定制 提供
拥抱晨间温柔的暖阳,暂时放下早起上班的匆忙与慌张,安安心心赖个床,才不负难得的“五一”假日时光!
【书房】

图片由 佛山·罗浮宫国际家具博览中心 1FA91-92,1FA93/97 玛格全屋定制 提供
书房的布置较简洁,只为营造一个纯粹的阅读环境。深咖与暖白组合的书桌,临窗而放,沉稳时尚。定制的深灰色书架,拉满房间内格调。书架内嵌氛围灯,书籍摆放位置一目了然。“五一”若不能在人海中旅游,在书海中遨游也未尝不可!
这套方案,低调优雅而不失精致温馨,运动、休闲空间应有尽有,让每位家庭成员都能各得其所,这就是全案定制的美妙之处。且全案定制凭其全链路一站服务的显著优势,让我们装修中常会遇到的价格怎么控制、风格如何协调、软装怎样搭配等问题,统统迎刃而解,实现心中理想的装修效果。
那么,对于我们这些家居门外汉来说,选哪些全案定制品牌比较靠谱呢?推荐木里木外、M77、博洛尼、木律、西舞、玛格这样的大品牌,无论口碑、服务还是产品设计,都是国内一流水准。位于顺德乐从的罗浮宫国际家具博览中心,A区1楼专门开设了全案定制区,上述的全案定制品牌都有入驻,拥有智能系统、门系统、护墙板、储物空间、整体卫浴等多个主流产品体系,可从顾客的个性和喜好出发,提供从毛坯房到拎包入住的全方位一站式全案定制服务,满足不同消费人群对定制家装的需求。
而且现在去罗浮宫买家具是比较合适的,正好赶上其在五一期间即将推出的“三重享惠,千万补贴”促销活动,买家具,抽华为、戴森、3000元零门槛购物券等大牌豪礼,免费住超五星酒店豪华客房,登录【罗浮宫家居】微信小程序,还可以享“100抵11000”元的家居抵现。更多优惠可以关注“罗浮宫家居”微信公众号了解!
相关知识
房子这样装,“五一”宅家五天也有满满幸福感!
鸿扬家装献上消暑“凉策”,提升居家幸福感引发共鸣
福力得净醛·抗菌地板 疫期“宅”出幸福感
五一宅家也快乐 CASO卡梭制冰机给你满满清凉感
五一尽情乐,免费嗨五天!
福力得净醛·抗菌地板 疫期“宅”出幸福感
五一宅家新姿势,回归生活,这件家居好物必须赶紧备上
桂林各大楼盘化身“游乐园”五天小长假玩乐不必去远方!
华宅板材:送你一份“五一”宅家攻略
宅家如何懒出风格?山业懒人沙发提升冬日幸福感
推荐资讯
- 1穷人装修3万硬装怎么样,硬装 106811
- 2女生戴14号戒指算粗吗 正常 96857
- 3婆婆对儿媳说的暖心话 婆婆喜 96424
- 400后法定结婚年龄 结婚登记 65441
- 5燃气灶怎么选?跟随方太高效直 54890
- 6男生戴戒指的含义图解 女生戒 43456
- 7杨燕军 | 医院建筑的顶层设 40728
- 8泰安国悦山180平下跃美式风 34288
- 9积木家装修公司正规吗?选装修 27883
- 10农村现代简约自建房图片 27777