家是精神的寄托:南昌紫东嘉园119㎡现代简约风格案例
来源: 时间:2022-04-20 11:33
中国人自古以来以“家”为念,家是一个可以为我们遮风避雨的地方,家是一个可以给我们温暖、给我们希望的地方,家是一个可以让我们停靠的港湾,家也是我们精神上的寄托。
案例信息
出品:丛一楼装饰
楼盘:紫东嘉园
户型:三房二厅
面积:119㎡
风格:现代简约
设计亮点:
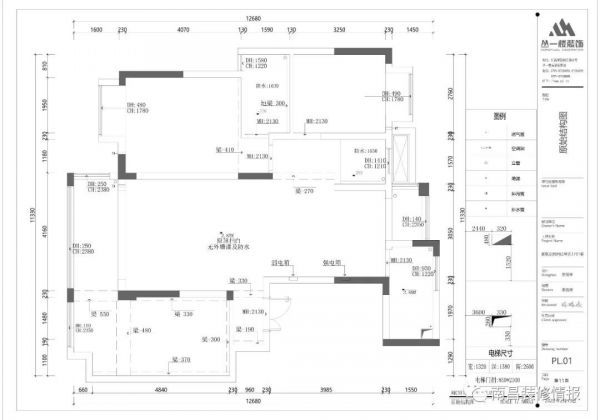
1.原始结构的大门位置方向改变后,增大了南面次卧的空间。
2.将原始客餐厅进主卧室的过道空间利用起来,延升餐厅以及次卫空间,不仅增大了餐厅的空间可放置冰箱以及酒柜,并将次卫做成了干湿分区,很好的利用了空间。
3.主卧室床对面设计了整排衣柜,侧面设计了大台面的书桌,书柜,充当了书房的功能。
- 客厅-

-餐厅 -

-主卧 -

-原始结构图 -

-平面布置图 -

相关知识
家是精神的寄托:南昌紫东嘉园119㎡现代简约风格案例
【实景案例】119㎡现代简约风格,摒弃繁杂,还原舒适纯净住宅
华亭嘉园 现代简约
113平米现代简约风格装修案例
73㎡现代简约风格装修案例
119㎡清雅脱俗现代三居
现代简约风格是近年来流行的风格
融泽嘉园120平就风格案例赏析
盛鑫嘉园130平米简欧风格案例
119㎡现代混搭三居,清爽干净
推荐资讯
- 1穷人装修3万硬装怎么样,硬装 107772
- 2女生戴14号戒指算粗吗 正常 100296
- 3婆婆对儿媳说的暖心话 婆婆喜 98236
- 400后法定结婚年龄 结婚登记 65532
- 5燃气灶怎么选?跟随方太高效直 54991
- 6男生戴戒指的含义图解 女生戒 44476
- 7杨燕军 | 医院建筑的顶层设 42534
- 8泰安国悦山180平下跃美式风 37675
- 9积木家装修公司正规吗?选装修 29652
- 10农村现代简约自建房图片 29557
资讯热点排名